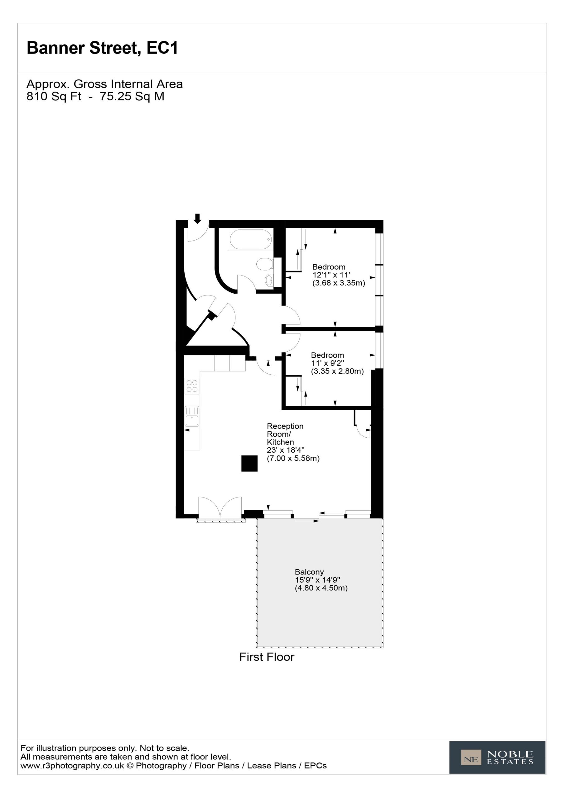
A beautifully proportioned apartment that extends to approximately 810 sq ft, with a substantial roof garden.
The centrepiece of the home is an impressive open-plan reception room and kitchen. This expansive area provides exceptional versatility, with ample space for elegant dining, relaxed lounging and stylish entertaining, all within a bright and well-considered layout.
Britannia Lofts is an exclusive new development of 18 bespoke loft- style apartments, carefully crafted to reflect the character and creative heritage of its setting. Inspired by the area’s industrial past, the architecture subtly echoes the proportions and rhythm of historic warehouse buildings, while interiors reinterpret these influences through refined materials, contemporary finishes and meticulous detailing. Exposed textures, clean architectural lines and carefully balanced palettes create homes that feel authentic yet elevated.
Generous proportions, abundant natural light and thoughtfully considered interiors come together to create homes designed for sophisticated, contemporary city living. Expansive windows invite daylight deep into each apartment, enhancing the sense of volume and openness, while carefully selected materials and finishes introduce warmth, texture and refinement. Every element has been curated to balance style with practicality, delivering living spaces that feel both impressive and effortlessly comfortable.
Perfectly positioned just moments from Old Street Station, Britannia Lofts enjoys a prime location in one of London’s most dynamic neighbourhoods. Excellent transport connections place The City, the West End and beyond within easy reach, making daily commuting seamless and convenient. Yet despite this connectivity, the development sits within a characterful enclave known for its creativity and culture, surrounded by an exceptional collection of independent restaurants, vibrant bars, artisan cafe´s and curated boutiques that define the distinctive energy of Old Street and its neighbouring districts.
In accordance with the 1979 Estate Agency Act, we disclose that the CEO of the company has a vested interest in the property. Please feel free to ask for further details.
Interested in this property?
Our property professionals are happy to answer questions or help you book a viewing.