4 Bed
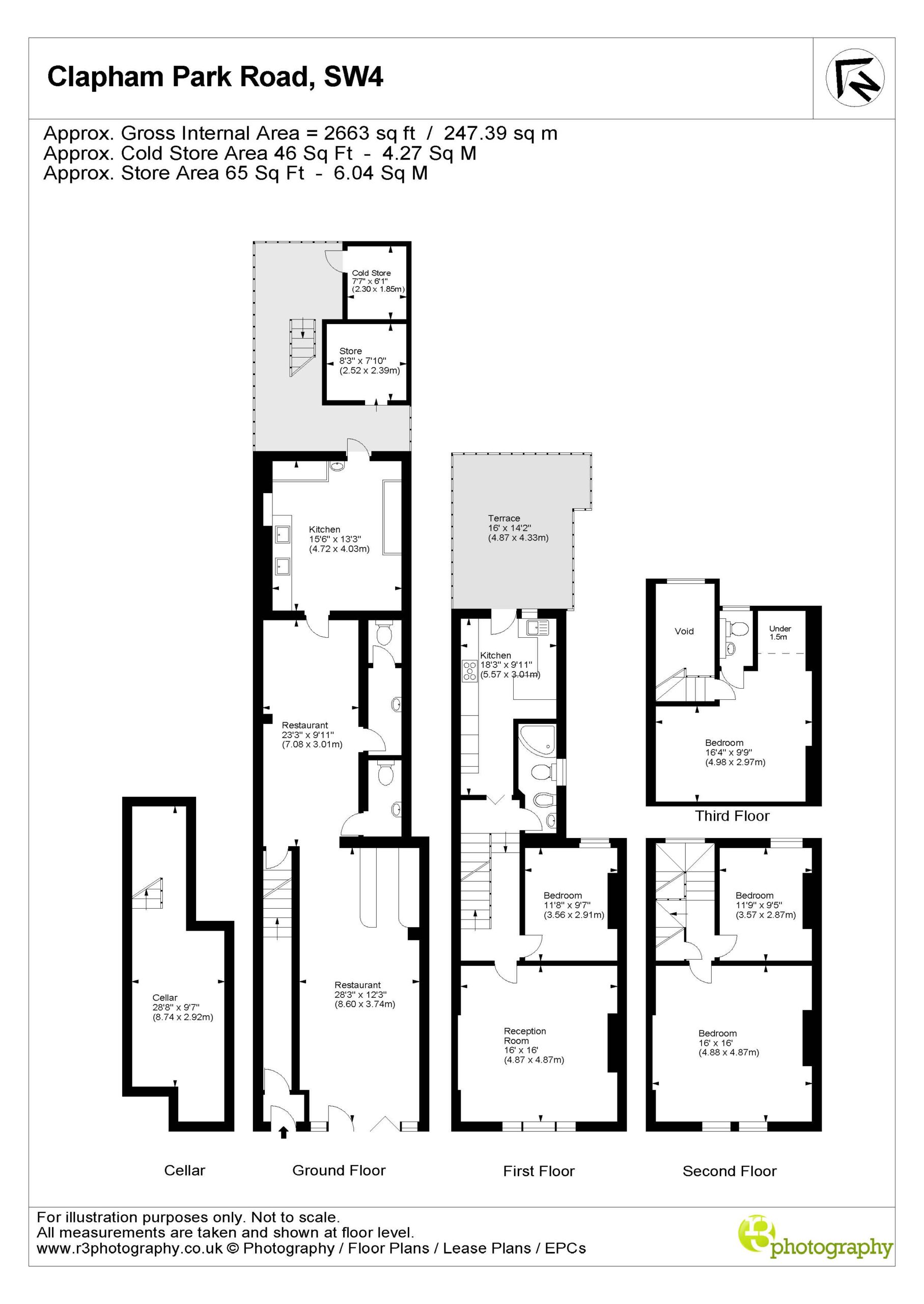
CLAPHAM PARK ROAD, SW4£1,150,000
CLAPHAM PARK ROAD, SW4£1,150,000
-
4 Bed
-
1 Bath
A Freehold mixed-use property for sale conveniently located on Clapham Park Road.
A Freehold mixed-use property for sale conveniently located on Clapham Park Road.






















