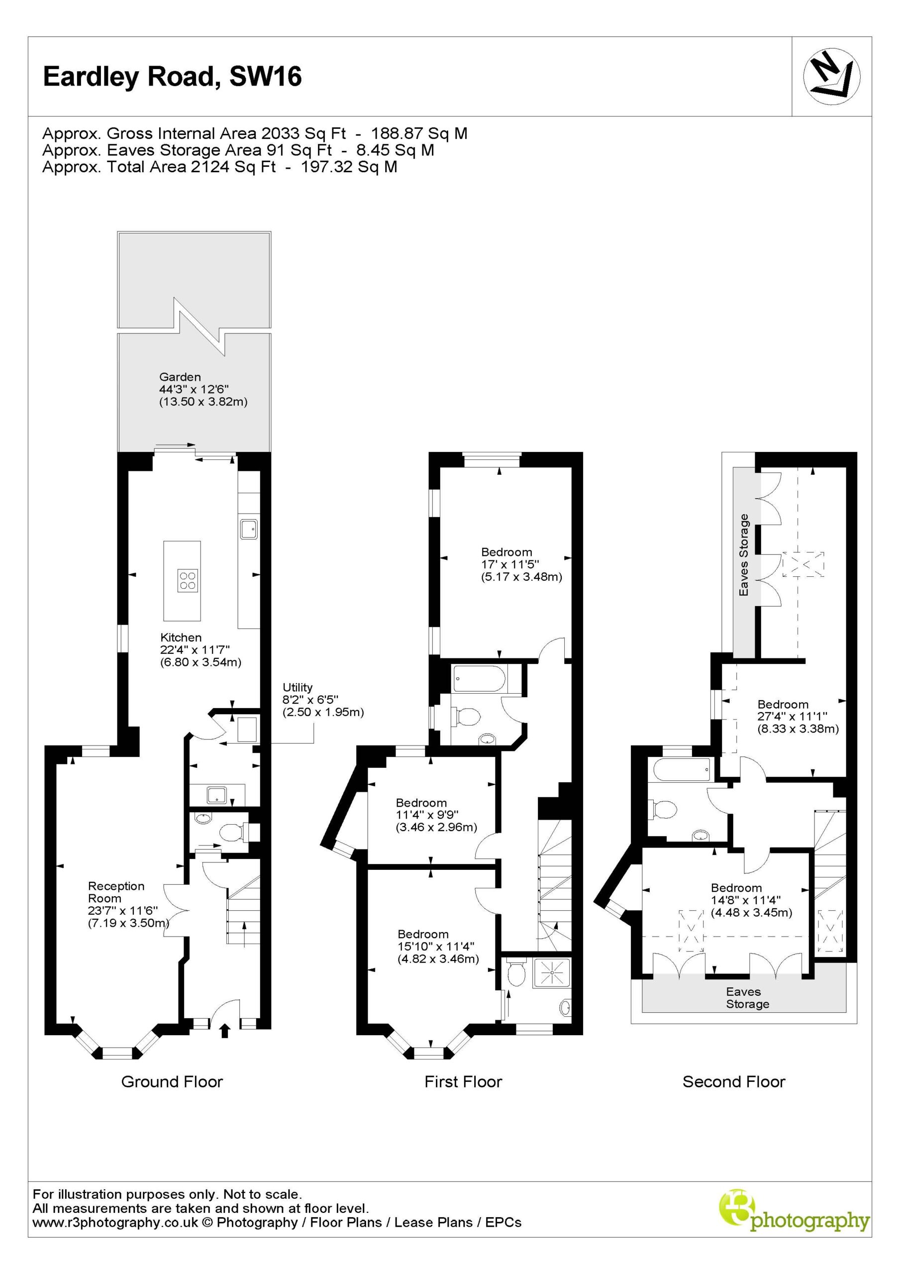
A brand new five-bedroom house offering over 2,000 sq ft of high-specification living, a private rear garden and a 10-year New Home Warranty, ideally located moments from Streatham Common station.
A striking, brand new five-bedroom house offering in excess of 2,000 sq ft of high-specification accommodation, complete with a 15-foot private rear garden and the reassurance of a 10-year New Home Warranty. Ideally positioned on Eardley Road, just moments from Streatham Common station, this exceptional home combines contemporary design with practical family living.
The property boasts an impressive façade, featuring elegant brickwork and distinctive dark-framed windows, some with stylish protruding detailing. There is also the added benefit of dedicated external storage, ideal for bikes and outdoor equipment.
Upon entering, you are welcomed into an expansive double reception room with engineered oak flooring and excellent proportions, providing a versatile space for both entertaining and everyday relaxation. To the rear lies a bright and beautifully appointed kitchen and dining room, perfectly designed for modern living. This superb space benefits from engineered wood flooring and large bi-fold doors that flood the room with natural light and open directly onto the garden. The kitchen is fitted with extensive wall and base units, integrated Bosch appliances including fridge/freezer, dishwasher, oven and microwave, sleek quartz worktops, and a substantial central island that also serves as a breakfast bar.
The private rear garden has been thoughtfully landscaped, with tiled space ideal for outdoor dining and low-maintenance artificial lawn beyond - creating an excellent setting for entertaining during the warmer months.
The first floor accommodates a generous principal bedroom at the front of the house, filled with natural light from a large bay window and offering ample space for storage. This room further benefits from a contemporary en-suite shower room finished with striking tiling. Two further well-proportioned double bedrooms are located to the rear, alongside a modern family bathroom featuring both a bath and a separate shower.
On the top floor, there are two additional bedrooms and a further family bathroom, making this an exceptionally flexible layout for growing families, home working or guest accommodation. Homes of this size and specification are rarely available, presenting a truly exciting opportunity.
Eardley Road is superbly located within easy reach of Streatham Common station, offering fast and direct services to Balham, London Bridge, Clapham Junction and East Croydon (for Gatwick Airport). Streatham station provides Thameslink connections, while numerous bus routes offer convenient access to Victoria and the surrounding areas. Greyhound Lane is nearby and hosts a vibrant selection of independent cafés, boutiques and restaurants, with Tesco Extra and Sainsbury’s also within walking distance. The wide open green spaces of Streatham Common and Tooting Common are close at hand, offering walking trails, sports facilities and family-friendly activities.
In every respect, this is a rare and outstanding opportunity for a discerning buyer seeking space, style and convenience in one of South London’s most dynamic neighbourhoods.
Interested in this property?
Our property professionals are happy to answer questions or help you book a viewing.