A light and spacious newly renovated two-bedroom garden apartment, extended and modernised to an exceptional standard by the current owners.
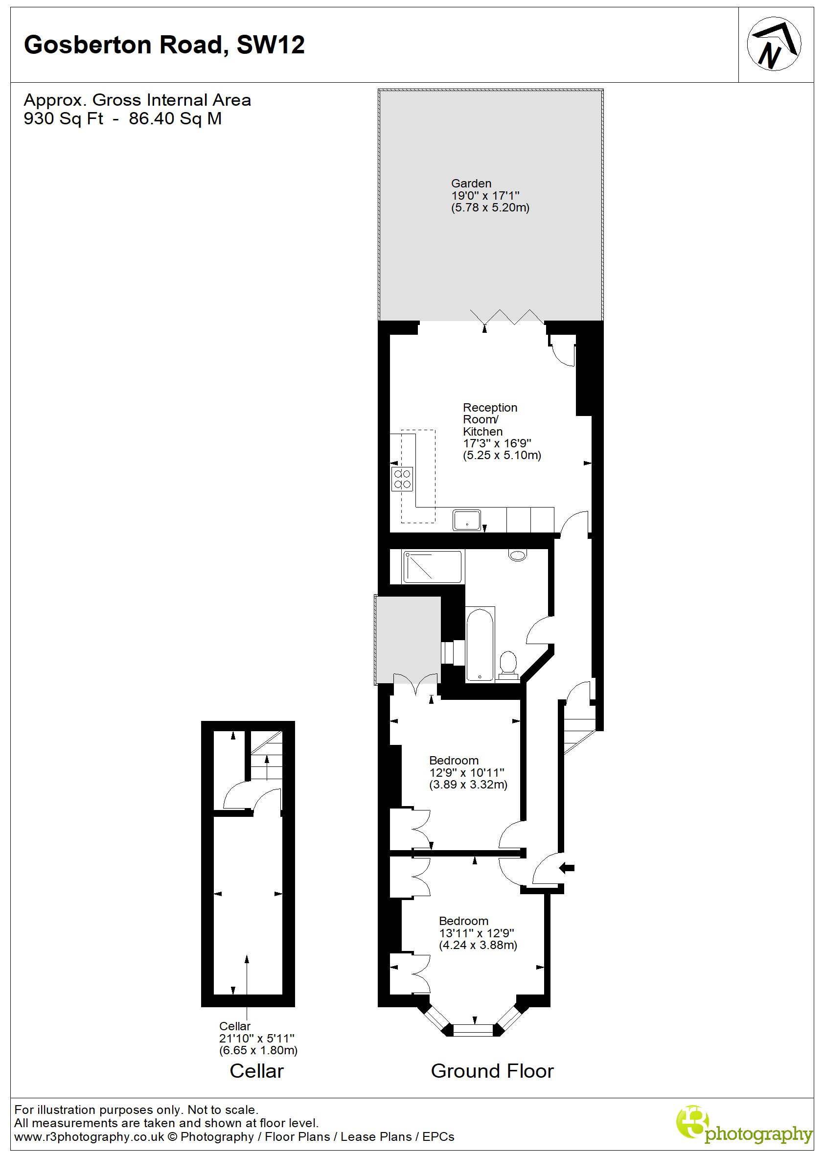
At the front of the property sits the principal bedroom, featuring large bay windows that fill the room with natural light, a beautiful fireplace, and original cornicing that adds classic period charm. Bespoke built-in wardrobes provide excellent storage. The second bedroom also benefits from high ceilings, a custom-fitted wardrobe, and French doors opening onto a private courtyard garden.
Along the hallway is a generously sized family bathroom finished to a luxurious specification, featuring Terra Bella Moroccan handmade Zellige tiles, a bespoke vanity unit with marble top, ABI Interiors taps and shower fittings, and further Mandarin Stone tiles throughout.
To the rear of the apartment is a stunning open-plan kitchen/reception room, bathed in exceptional natural light thanks to the Cortizo glass skylights and bi-fold doors overlooking the garden. The contemporary kitchen includes Mandarin Stone floor tiles, a bespoke Topsco granite countertop, and a custom-made kitchen hood with carbon filter, all complementing the stylish new units. The full-width bi-fold doors open onto the beautifully landscaped, low-maintenance north-west-facing garden ideal for summer entertaining.
The garden has been thoughtfully designed using premium materials, including Mandarin Stone cobbles for the built-in bench and Quorn Stone limestone pavers, creating an elegant and durable outdoor space.
The lower ground floor provides a useful cellar offering additional storage.
Gosberton Road is ideally positioned close to the shops, cafés, and restaurants of Balham High Road, with excellent transport links available at Balham underground and mainline stations, providing direct services into the City and West End. Wandsworth Common station is also a short walk away. Both Clapham and Wandsworth Commons are nearby, and the area benefits from a strong selection of schools in both the state and private sectors.
Interested in this property?
Our property professionals are happy to answer questions or help you book a viewing.