A beautifully presented three-bedroom Victorian terraced house, offering approximately 1,187 sq ft of thoughtfully designed living space, positioned on a charming residential street in the heart of SW4.
A beautifully presented three-bedroom Victorian terraced house, offering approximately 1,187 sq ft of thoughtfully designed living space, positioned on a charming residential street in the heart of SW4.
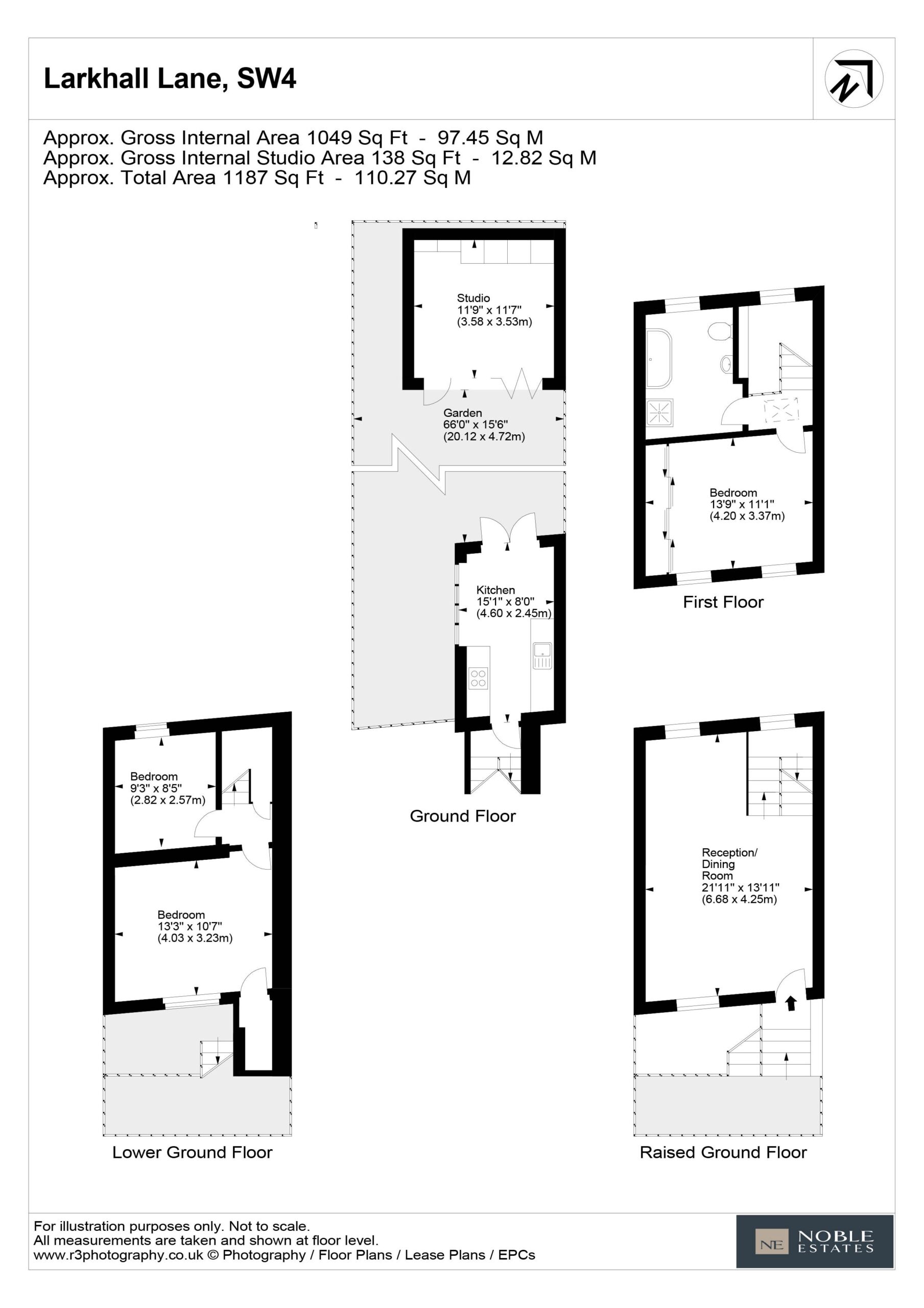
This exceptional home, which has been refurbished and updated throughout by the current owners, seamlessly blends period character with contemporary style. The raised ground floor is arranged as an elegant reception and dining room, bathed in natural light and finished with stunning flooring and a calming, neutral palette-creating an inviting space for both relaxing and entertaining. The property further benefits from double-glazed sash windows throughout the house.
To the rear, the ground floor features a stylish, well-appointed kitchen with direct access out to a generous and stunning private garden that benefits from a long, high south-facing wall and works well for outdoor dining/entertaining. The studio is a fully usable, heated space all year-round and can be used as a home office, gym, studio, amongst other things.
The upper floor comprises the master bedroom, complemented by a sleek, contemporary bathroom finished to a high standard.
The property further benefits from excellent natural light throughout and clever use of space. The house also has extension potential, having previously had planning permission approved for a two-storey extension (now lapsed).
Larkhall Lane is ideally located for the amenities of Clapham, with an array of cafés, restaurants and green spaces nearby, as well as excellent transport links providing easy access into Central London.
A truly stunning home, offering both style and practicality in equal measure.
Interested in this property?
Our property professionals are happy to answer questions or help you book a viewing.