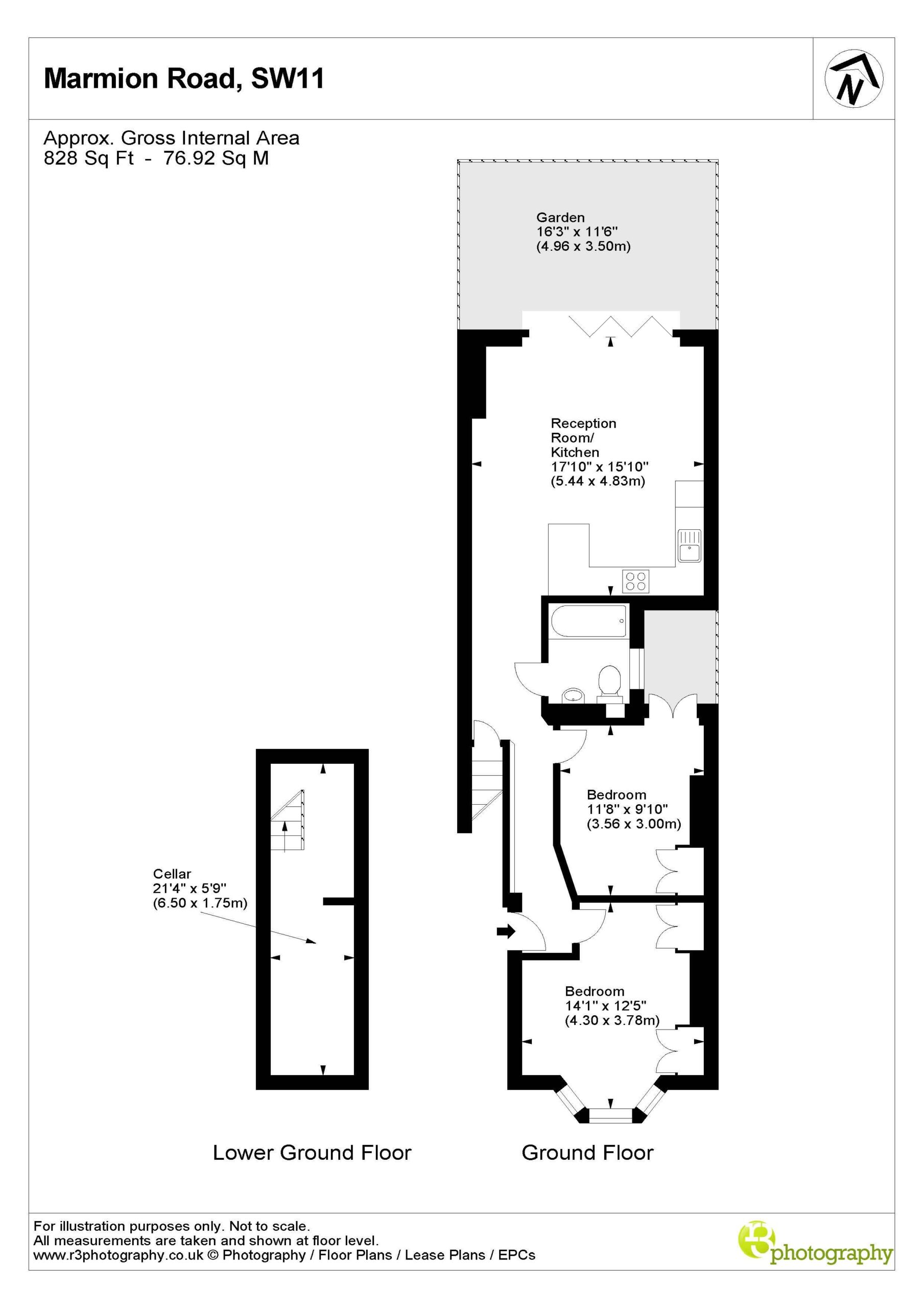
A superb two double bedroom garden flat, beautifully designed and finished to an exceptional standard throughout. This spacious home will appeal to buyers seeking a turnkey property that has been thoughtfully and skilfully renovated.
The flat is flooded with natural light and, to the front, offers two excellent double bedrooms, both boasting generous proportions and attractive original cornicing. The welcoming hallway features stylish engineered wooden flooring, leading through to an impressive open-plan kitchen and reception room. This outstanding space showcases a sleek, fully fitted kitchen with marble worktops and contemporary wall and base units. The extended reception area features striking exposed metal beams, while bi-folding doors open directly onto a well-maintained private garden - ideal for entertaining and enjoying the warmer months.
The property also benefits from a beautifully presented family bathroom, complete with a bath and rainfall shower overhead, finished with premium tiling and high-quality fittings to create a calm and relaxing space. Excellent additional storage is available in the basement cellar.
Marmion Road is a quiet and highly regarded residential street on the sought-after ‘Northside’, just moments from the Belleville feeder school on Forthbridge Road. The open spaces of Clapham Common are close by, as are excellent transport links including local bus routes, Clapham Common Underground (Northern Line) and Clapham Junction station, offering direct services into Victoria and Waterloo. A wide selection of shops, bars and restaurants can be found nearby on Northcote Road, Battersea Rise, Lavender Hill and Clapham Old Town. In addition, a range of popular independent and state schools are within easy reach, subject to catchment and availability, making this an ideal home for both professionals and families alike.
Interested in this property?
Our property professionals are happy to answer questions or help you book a viewing.