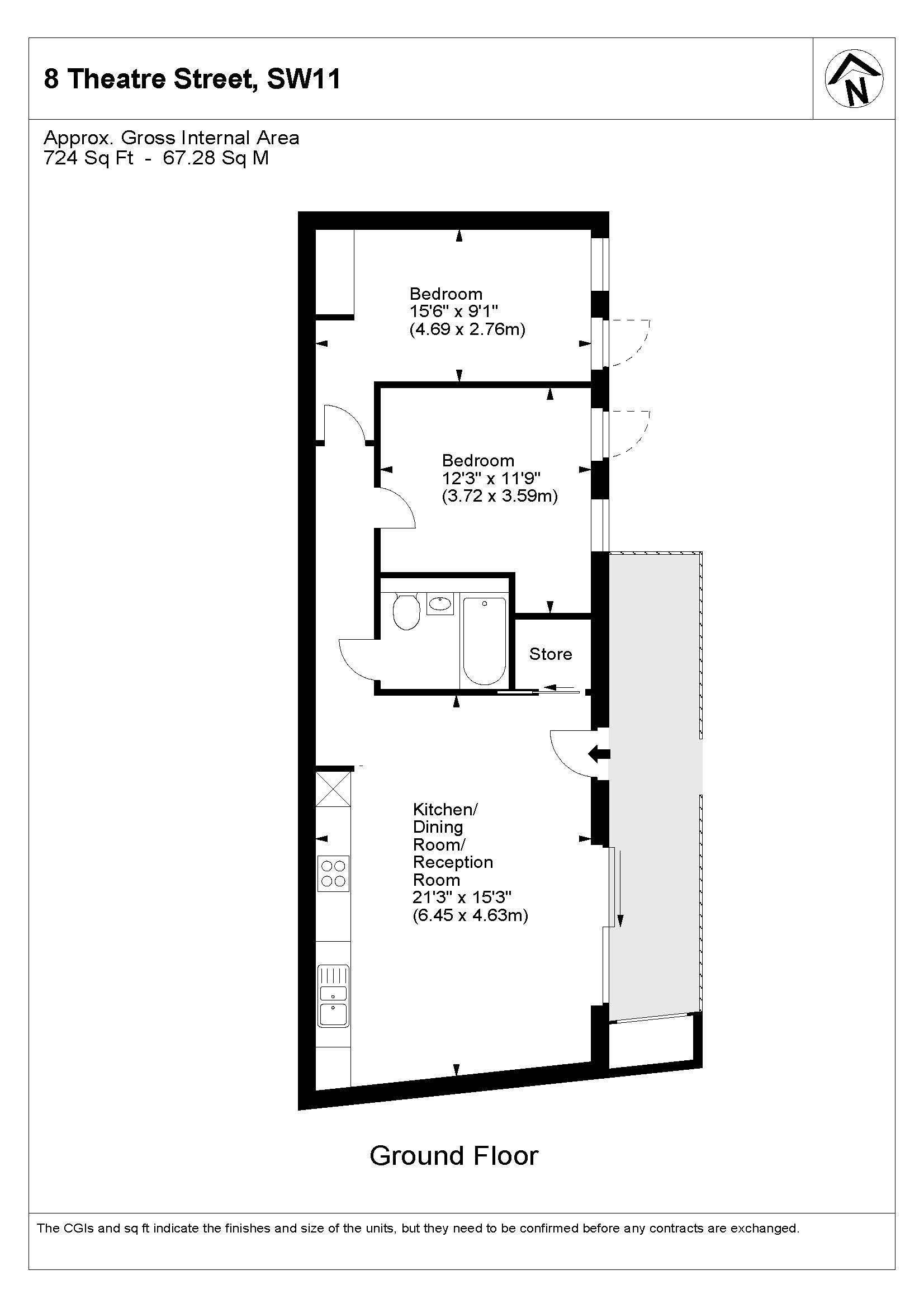
2 Bed House

MOUNTFORD MEWS, SW11£745,000
  • 2 Bed
  • 1 Bath

A boutique mews development comprising a one-bedroom and seven two-bedroom freehold houses.

For Sale